NUROL LIFE ASLANTEPE
Proje Özellikleri
Toplam Konut
502 Adet
Durum
Tamamlandı
İlan Tarihi
19.10.2025
Proje Olanakları
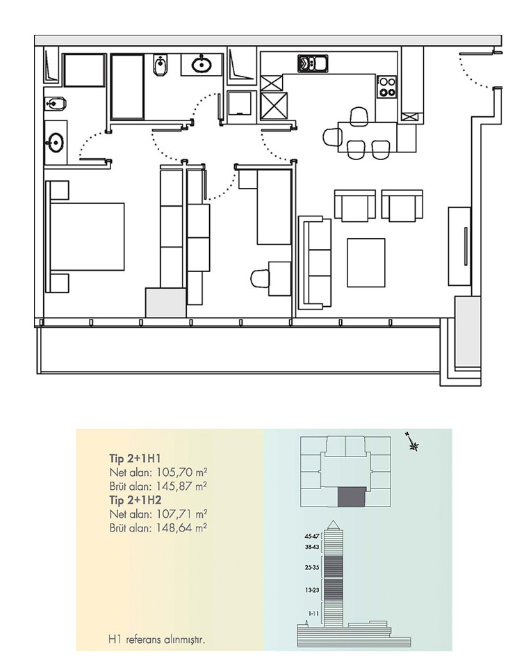
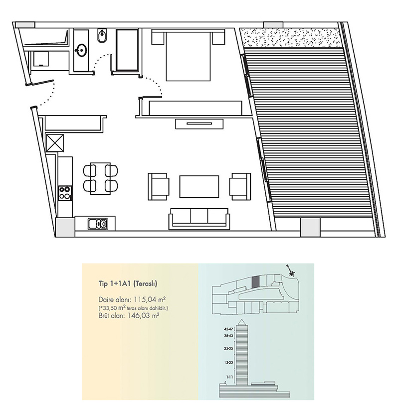
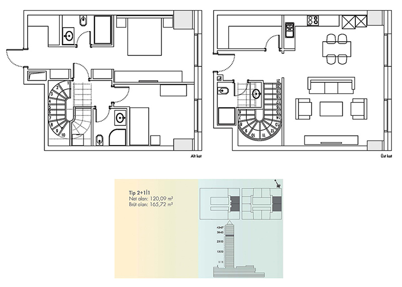
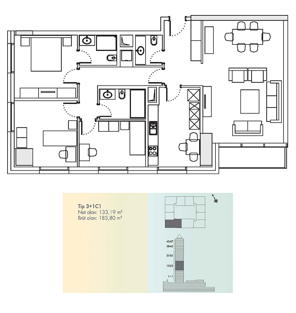
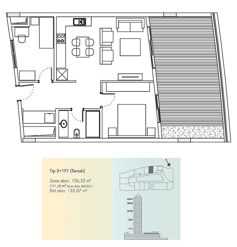
Daire Seçenekleri: 1+0,1+1,2+1,3+1,4+1
Metrekare Aralığı: 62
Teslim Tarihi: 2017-03-01
Fiyat Aralığı: 823500
Geliştirici
NUROL GYO
Şirketimiz Eylül 1997'de 10 trilyon TL kayıtlı sermaye tavanı ve 1 trilyon TL ödenmiş serma...
0212 286 82 40
info@nurolgyo.com.tr
Detaylı Bilgi